欢迎来到安平县秉德丝网制品有限公司网站!

吴堡县千村光伏项目光伏区围栏专业生产厂家
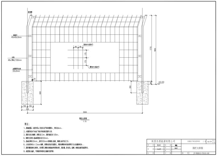
附注:
1、围墙范围、长度详见《光伏区总平面布置图》,单位为mm。
2、本围栏适合于站内广场以外的场区围护之用。
3、围栏支柱为钢管,间距为3.0m。围栏高度为1.85m。
4、钢管支柱埋入基础深度应为300mm。
5、基础为深600mm,直径300mm的混凝土基桩,混凝标号为C30。
6、立柱采用48x1.5mm 钢管,两边设有安装排孔,用防拆螺和压板将网片与立柱整体咬合。
7、围栏整体颜色为绿色,采用聚乙烯粉末脂涂料浸处理,其防腐、防老化、抗晒、耐候应满足规范要求。
8、坡度较大地区,可根据实际情况,抱安装牢固。