欢迎来到安平县秉德丝网制品有限公司网站!

广西百色高速公路刺钢丝隔离栅专业生产厂家
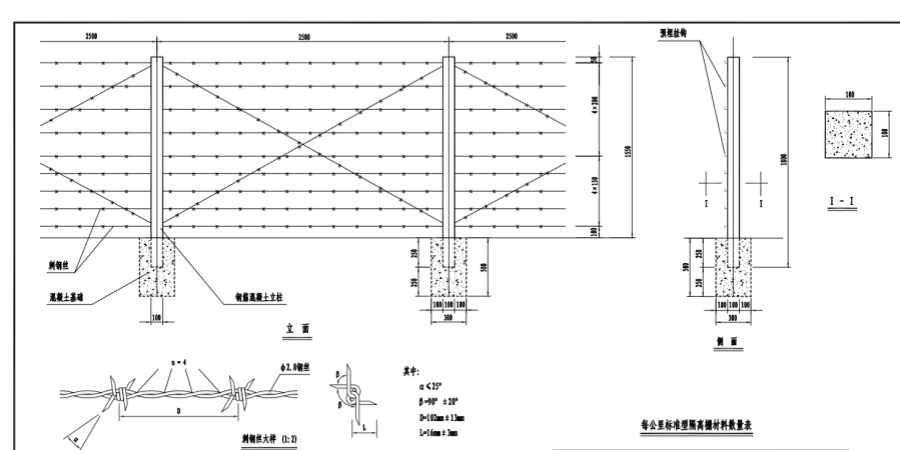
说明:
1.图中标注尺寸均以毫米为单位。
2.直线段每隔20m设置砼基础Ⅱ (300x 400 x 500);每隔50m设置砼基础Ⅲ (400x 400 x 500);每隔100m设置砼基础IV (400x500x600)。
3.凡拐角处设置砼基础Ⅱ (300x 400x 500)。
4.端头设置砼基础IV (400x500x 600)。
5.布设时根据公路用地界地形进行必要的修整,平坦地段水平设置,坡形地段顺坡设置。
6.刺钢丝为双股带刺镀锌低碳钢丝,股线采用2根12#钢丝,刺钢线采用12#钢丝,刺间距为102mm,刺节有4个刺,刺形直尖,刺长为16±3mm,刺线缠绕股线为1.5圈,应捻扎牢固,刺形均匀。
7.刺钢丝与斜拉钢丝交汇处采用长120mm的12#钢丝绑扎牢固。
8.热浸镀锌的镀锌量为250g/㎡,热浸镀锌所用的锌应满足《锌锭》(GB/T470-2008)中的相关规定。