欢迎来到安平县秉德丝网制品有限公司网站!

新疆昌吉S240线准东大井服务区至奇台公路改扩建电焊网隔离栅生产厂家
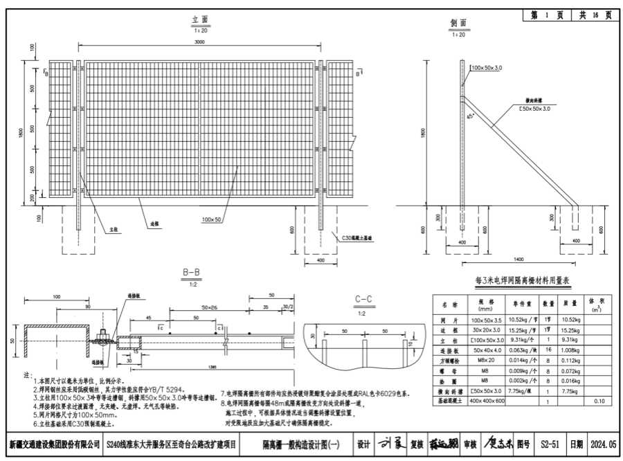
1.本图尺寸以毫米为单位,比例分示。
2.焊网钢丝应采用低碳钢丝,其力学性能应符合YB/T 5294。
3.立柱用100x50x3冷弯等边槽钢,斜撑用50x50x3.0冷弯等边槽钢。
4.焊接部位要求过渡圆滑,无夹缝、无虚焊、无气孔等缺陷。
5.网片网格尺寸为100x50mm。
6.立柱基础采用C30预制混凝土。
7.电焊隔离栅所有部件均应热浸镀锌聚酷复合涂层处理成RAL色卡6029色系。
8.电焊网隔离栅每隔48m或隔离栅改变方向处设斜撑一道,施工过程中,可根据具体情况适当调整斜撑设置位置,对受限地段应加大基础尺寸确保隔离栅稳定。