欢迎来到安平县秉德丝网制品有限公司网站!

高速公路分离式立交桥防落物网专业生产厂家
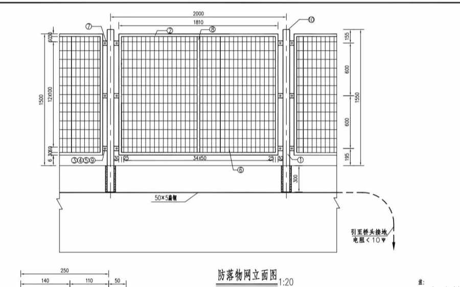
1.本图尺寸以毫米为单位。
2.本图适合于防落物网设在人行天桥或分离式立交桥砼护栏顶上。
3.施焊前,要求各单体平直并去除毛刺及锈迹,焊接部位要求过渡光滑,无夹渣,无虚焊,无气孔等缺陷。
4.构件焊接成型后的整体曲翘度横向不得大于7mm,纵向不得大于5mm。
5.连接板与立柱及网片边框在组焊时,其对称中心的偏斜不得超过1mm。
6.所有钢构件均应作防腐处理,先镀锌再镀塑,防腐层厚度详见设计说明。镀塑层必须均匀亮泽,镀层厚度为0.5~0.6mm。