欢迎来到安平县秉德丝网制品有限公司网站!

城市高架桥梁防落网专业生产厂家
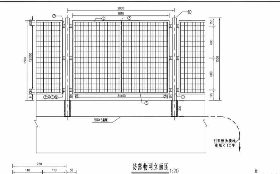
1.防落网须做防雷接地处理,接地电阻应小于10欧姆。在混凝上护栏内设置一块50x5扁钢连接所有预埋套筒,扁钢与预埋套简底部焊接,并引至桥头接地。测量防落网防雷接地电阻小于10欧姆为合格,若大于10欧姆,则应在桥墩适当位置增打接地极以满足电阻要求。
2.焊接钢丝要求冷拔状态,镀锌前抗拉强度不低于640MPa。
3.防落网立柱安装前应注意磨去底面塑层,以保证与套筒底板有良好的金属接触。
4.防落网立柱安装于护栏预埋套筒内,如未预埋套筒或预埋不当,可采用法兰立柱方式安装,同时采用扁钢和法兰连接接地。